£1,000,000
Brighton, BN2 7HP
Call Now
For Sale
£650,000













A fantastic, detached residence in one of Ovingdean’s most prestigious locations, this two bedroom home maximises natural sunlight and light flows effortlessly through it, with off street parking and no chain.
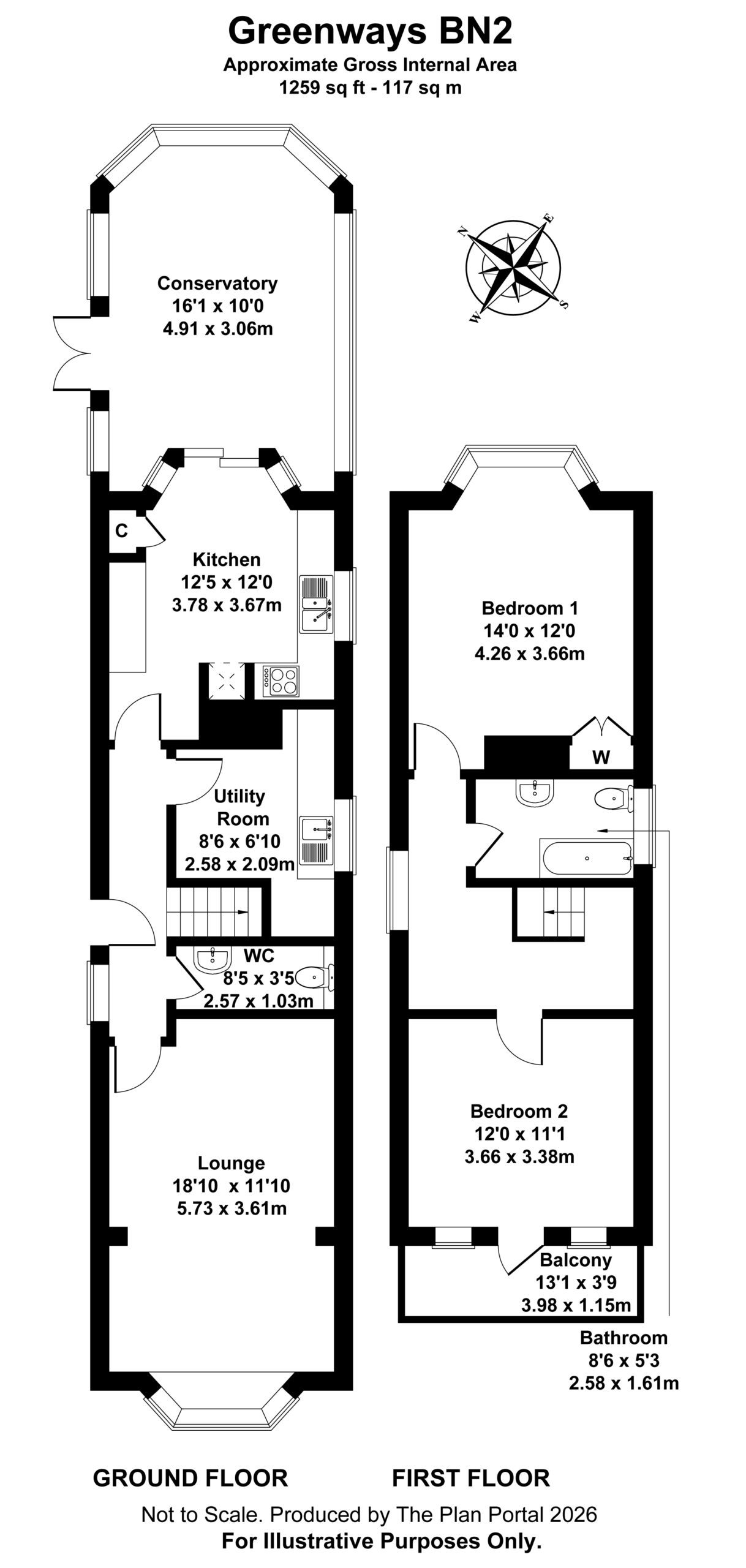
Entering the house from the side you walk into a hall/lobby area housing the stairs which is light and bright with lots of natural light and access to a WC, you have a lounge with a nice bay to the front, you will also find.
The kitchen is well fitted and has a very handy utility room also from the hallway, the kitchen leads out to the conservatory a really great space to be with doors leading out to the garden.
The staircase leads up to a landing which leads to the two double bedrooms one with the lovley South/West facing balcony, you also find the generous modern family bathroom.
Outside at the front you have the bordered drive and the rear is a a wonderful space majority laid to lawn with flower and shrub borders, a patio area and a path up to the rear with a decked area.
Nestled between Kemp Town and Rottingdean just east of Brighton, Ovingdean offers peace and tranquillity. It even has its own stepped access to the beach with a little café as well as a village shop. A reliable, regular bus service provides easy access into the city. It is an area popular with families and couples and has some fantastic walks right out of every front door! It is extremely well regarded and near the private schools of Roedean, Oxford International School, and Brighton College which are popular with the residents.
Very close by is Rottingdean in a fantastic position by the sea and on the edge of the South Downs National Park offers peace and tranquillity, a local nature reserve with Windmill and wonderful walks nearby. The village is blessed with a great selection of artisan shops and eateries as well as the convenience of Brighton Marina close by there are pubs, restaurants and cafes, a local museum/art gallery and public library. Local shops include a butcher, bakery, greengrocer/deli, post office, veterinary services and local supermarkets amongst others. Rottingdean has a very popular bathing beach and the lovely undercliff walk for walking and cycling is a great way to reach not only the Marina but also right into the heart of the City.
Brighton & Hove with their large shopping centres, fashionable Lanes, theatres, bars and restaurants, and the train stations can be easily reached by using the excellent bus services taking you to the city centre within 10 to 20 minutes.
Sporting and recreational facilities nearby are extensive: there is golf at East Brighton, West Hove, the Dyke and Pyecombe, there is Horse Racing at Brighton and Plumpton, sailing at Brighton Marina, and Premier League football at the Amex. Brighton airport at Shoreham offers a convenient local base for private aircraft. Gatwick Airport and Newhaven Port are within easy reach.
There are many highly regarded schools and colleges in this area with two primary schools and Longhill Secondary in the village. Brighton and Hove also feature sixth form colleges, Roedean School, Brighton College and two Universities together with a number of creative arts institutes
£1,000,000
£425,000
12 West Street, Rottingdean, Brighton, BN2 7HP
01273 300525